产品中心

江苏汉铭智能科技有限公司
产品中心 粉体输送 自动配料 自动包装 单机设备

吨袋小袋二合一投料站


      吨包小袋二合一投料站可以实现兼顾吨包投料和小袋投料包装,实现了多种包装规格的物料在同一设备进行投料,而且占地面积小,整体结构轻巧,该设备与传统投料设备相比有以下优点:


    1)可以满足吨包投料,和多种规格小袋投料;
    2)该设备采用压袋形式,吨包投料时,先将吨包的外袋与设备压紧,在投料口内部进行解袋,解袋完成后将解袋口关闭,防止粉尘外泄;
    3)配有收尘系统,可以将收集的粉尘返回投料站内,以减少投料过程中的粉尘外泄从而避免物料的浪费;
    4)该设备有辅助卸料(拍打)功能,当吨包内物料过少时,辅助卸料打开,可以减少投料时间;
    5)内部配有篦子,防止投料过程中的异物以及大块物料进入;
    6)下部配有辅助卸料装置,投料站内的物料进入下游设备;
    7)该设备还可配备条码放错装置,防止工人投料错误,以便于和其他自动设备的整体配套和整体控制;
    8)地脚处可以安装脚轮,便于设备灵活移动。

Ⅰ、工作原理

      投料时产生的物料粉尘被离心风机或抽气管道形成的负压吸到过滤系统中,使物料与空气分离,防止粉尘四散逃逸、污染周围环境和保护操作者身体健康。

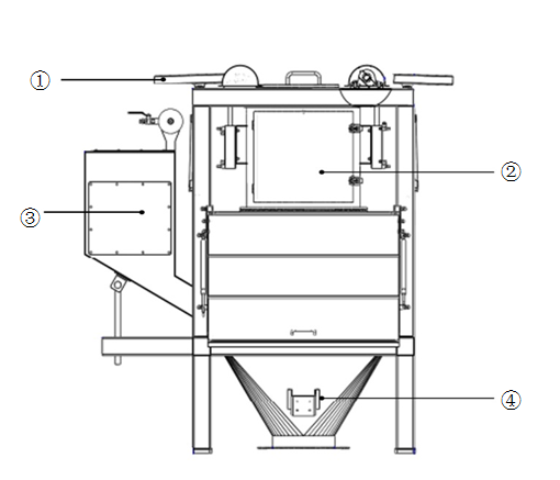
Ⅱ、主体结构


 

①拍打装置   ②受料仓组件   ③收尘组件   ④投料站仓体